36 Korong Road, Heidelberg West

A Rare Find! (Mechanics and Panel Beaters Take Note!)

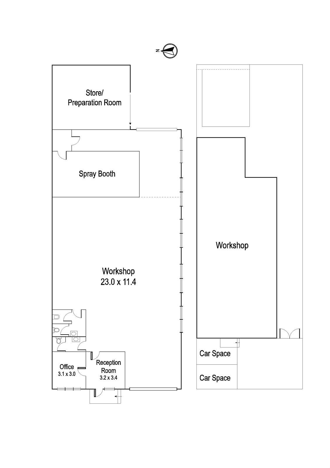
This versatile factory with rear yard offers a unique opportunity for a business to establish themselves with flexibility to occupy part or as a whole with potential to re-develop at a later stage.

- Building area 300 sq. metres (approx.)
- Total land area 673 sq. metres (approx.)
- Side access to rear yard
- Features include 3 phase power, two roller door access points, reception, office area, security system
- Operational paint oven and preparation booth
- Excellent access to major arterial roads and situated in this very tightly held Industrial Estate
- To be sold with Vacant Possession
- First time offered in 37 years

Terms: 10% Deposit. Balance 120 Days

For further details or to arrange an inspection contact:
Jonathan Rizzo 0404 125 846
Paul Evans 0408 144 181

SOLD
AUCTION SALE
PRICE
$800,000
Contact Agent

Neighbourhood

Heidelberg West

Heidelberg West is rich in strong community ties thanks to young families seeking real estate value and leafy surrounds.

Read More

Contact our commercial experts for trusted guidance on sales or leasing.

Read More